CARBON
ELEGANZA, STILE, COMFORT. LINEE PULITE E SUPERFICI A CONTRASTO CREANO SPAZI E COMPLEMENTI DI ARREDO PERSONALIZZATI. LA RISTRUTTURAZIONE COMPLETA DI QUESTO APPARTAMENTO IN CENTRO STORICO RIFLETTE UN PROGETTO SARTORIALE, CURATO IN OGNI DETTAGLIO.
Come un abito sartoriale che si adatta ai gusti e alle necessità di chi lo indossa, l’appartamento è stato interamente progettato, ristrutturato e arredato rispecchiando esigenze ed estetiche desiderate.
Come un abito sartoriale, l’appartamento è stato interamente progettato, ristrutturato e arredato in stile minimal.
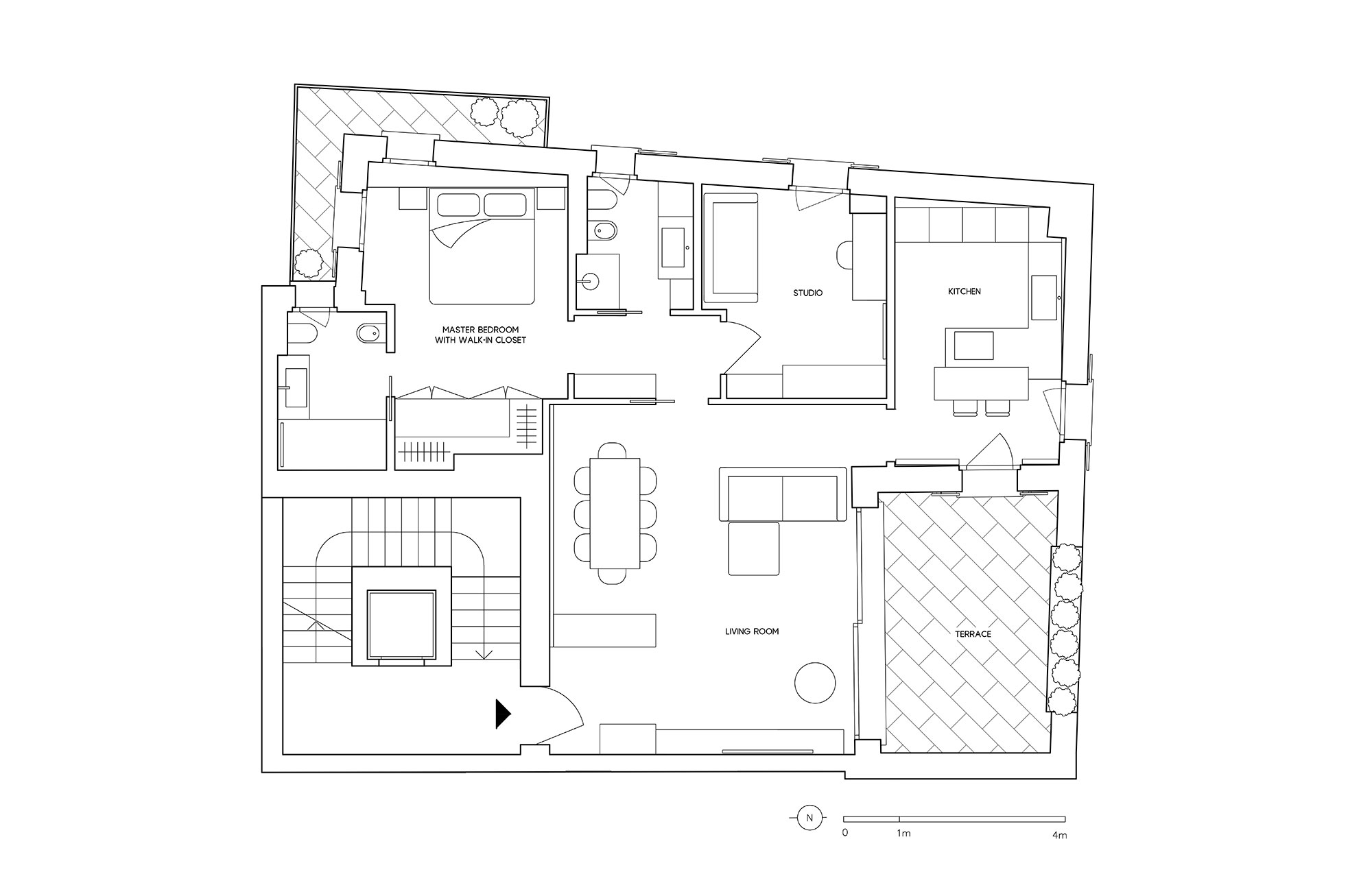
La zona living e la cucina si affacciano sulla grande terrazza loggiata. La zona notte, con camera padronale, ampia cabina armadio e bagno, si completa con la camera studio e un secondo bagno per gli ospiti.
WHAT WE DID
PROGETTO DI RISTRUTTURAZIONE
INTERIOR DESIGN
DESIGN ARREDO SU MISURA
LIGHT DESIGN
DIREZIONE ARTISTICA
Inserti in fibra di carbonio conferiscono caratteristica unica ad ante e pannellature di rivestimento, donando al design degli interni un carattere maschile, sportivo e raffinato.
SUPERFICI LACCATE E FIBRA DI CARBONIO SONO UN CONNUBIO DI TECNOLOGIA, ARTIGIANALITÀ ED ELEGANZA.
l’essenza di rovere negli arredi personalizza cassetti e scomparti.
Sulla parete del living, lo skyline di Chicago si trasforma in fonte luminosa, donando alla parete un grande effetto scenografico.
La camera padronale ha un bagno con doccia walk-in e una cabina armadio con ante apribili senza soluzione di continuità a pavimento.
Tessuti in fibra di carbonio dall’anima tecnologica e sportiva creano un contrasto deciso con le pregiate laccature color sabbia.